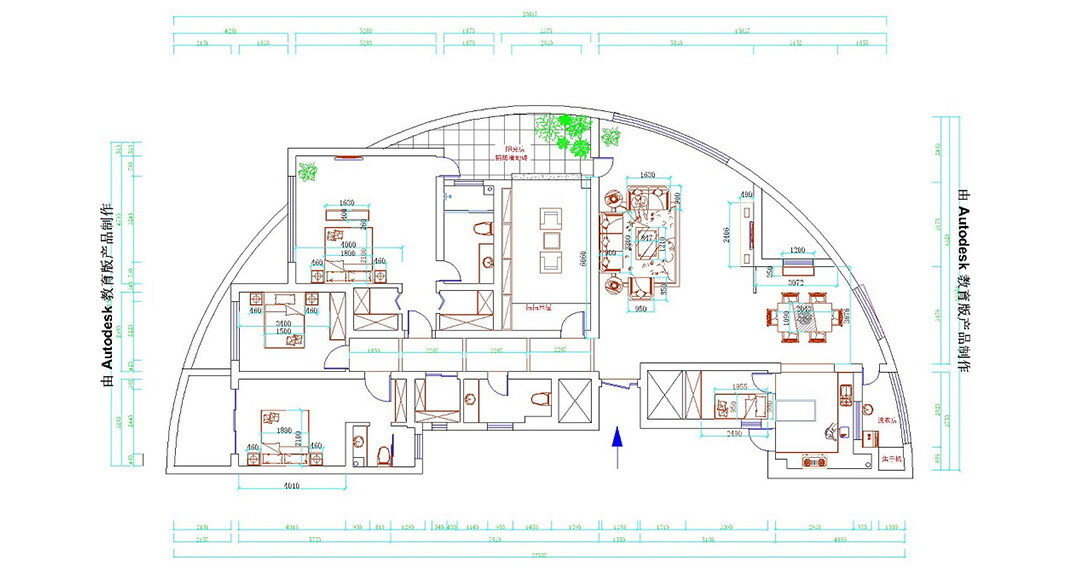
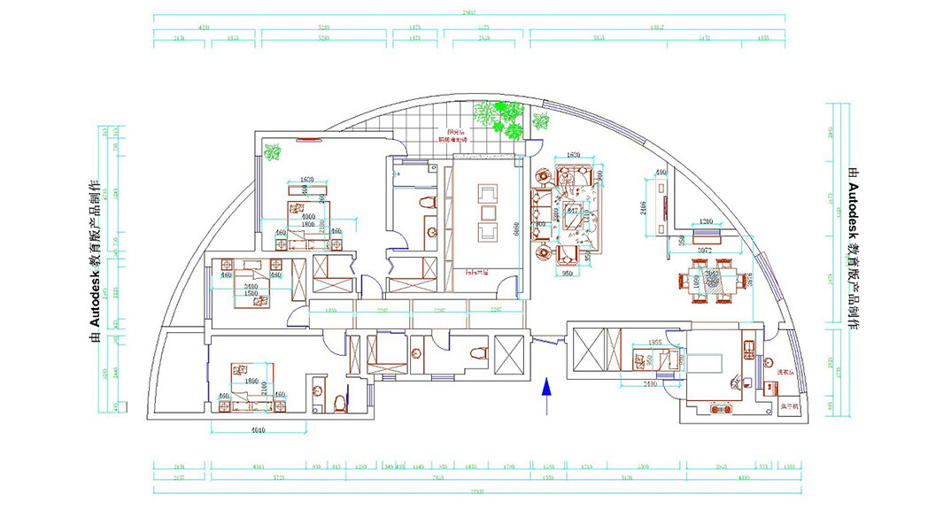
燕島國(guó)際172㎡平層戶(hù)型布局圖
燕島國(guó)際172㎡平層客廳中式風(fēng)格裝修案例效果圖
燕島國(guó)際172㎡平層客廳中式風(fēng)格裝修案例效果圖
燕島國(guó)際172㎡平層客廳中式風(fēng)格裝修案例效果圖
燕島國(guó)際172㎡平層客廳中式風(fēng)格裝修案例效果圖
燕島國(guó)際172㎡平層客廳中式風(fēng)格裝修案例效果圖
燕島國(guó)際172㎡平層廚房中式風(fēng)格裝修案例效果圖
燕島國(guó)際172㎡平層餐廳中式風(fēng)格裝修案例效果圖
燕島國(guó)際172㎡平層走廊中式風(fēng)格裝修案例效果圖
